Ваш регион:
0

+7 (800) 350-85-65*

*Звонок по РФ бесплатный

info+petrozavodsk@unilos-astra.com

создаем гармонию

Септик Астра 150 long

Выгодная цена: 1 935 280 руб. -15%

Цена: по запросу

Акция!
Цена под ключ: Посмотреть смету

В корзину
Астра 150 long

Технические характеристики Астра 150 long

Количество пользователей: 150

Залповый сброс: 4600 л

Объем переработки: 30 м3/сут

Удлинен. корпус: есть

Насос для откачки: нет (самотечный сброс)

Глубина врезки подвод. магистрали: 101 - 150 см

Глубина залегания: 150 см

Высота: 3.15 м

Длина: 4.01 м

Ширина: 2.16 м

Вес: 2800 кг

человек х150

краны х40

туалеты х30

души/ванны х20

Наши услуги

Замер и смета

Замер и смета

Доставка

Доставка

Монтаж и запуск

Монтаж и запуск

Обслуживание и ремонт

Обслуживание
и ремонт

Консервация на зиму

Консервация на зиму

48 часов от звонка до установки

48 часов от звонка
до установки

Подробнее об Астра 150 long

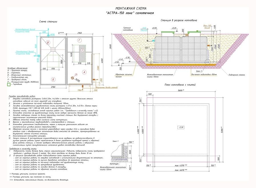
Монтажные схемы Астра 150 long

Почему выбирают нашу компанию?

10 лет гарантии

Работаем без предоплаты

Оплата за септик/автономную канализацию - при получении.

Не бросим Вас после продажи

Вот уже 11 лет мы не только ставим септики, но и обслуживаем их. Знаем станции вдоль и поперек. Как они устроены и чего от них ждать. Многие "установщики" вообще не понимают, что продают и как оно будет дальше работать.

Экономим Вам деньги

Мы работаем БЕЗ наценок на продукцию.

Делаем дополнительные работы

Вам требуется что-то ещё? Занимаемся также: подводом воды, дренажом, ливневкой, водопроводом, отоплением и другими строительными работами.

Наши менеджеры помогут быстро и правильно подобрать оптимальный вариант септика

Сертификаты и экспертное заключение

Выполненные монтажи

Видеогалерея

Остались вопросы или нужна консультация? Наши менеджеры с радостью помогут Вам

Как мы работаем

Оформление заявки

Бесплатный выезд инженера

Согласование плана и подписание договора

Проведение монтажных работ

Отличный результат